大家好,我是设计公司的设计师。很高兴能够看到这样的题目,对于合肥本地高端楼盘在还没有交房的时候,当时就已经有人开始提前做设计规划了。第一次过来测量的时候,看到“建发·雍龙府”的大门。我们也经常跑工地,小区的大门也是整个小区的门面,建发·雍龙府的大门能够给人一种从骨子里透漏出来的高端、大气、上档次!
如何判断小区是否算是好小区呢?
我们可以从以下几个方面作为参考点:
1、小区的大门,与众不同,有自己独特的设计。

2、小区内部的环境,整个雍龙府的小区环境打造以传统中式园林的方式,环境优美。在热闹的城市里能有一片这样的园区。

看着让人很舒心,给人一种放松的感觉。
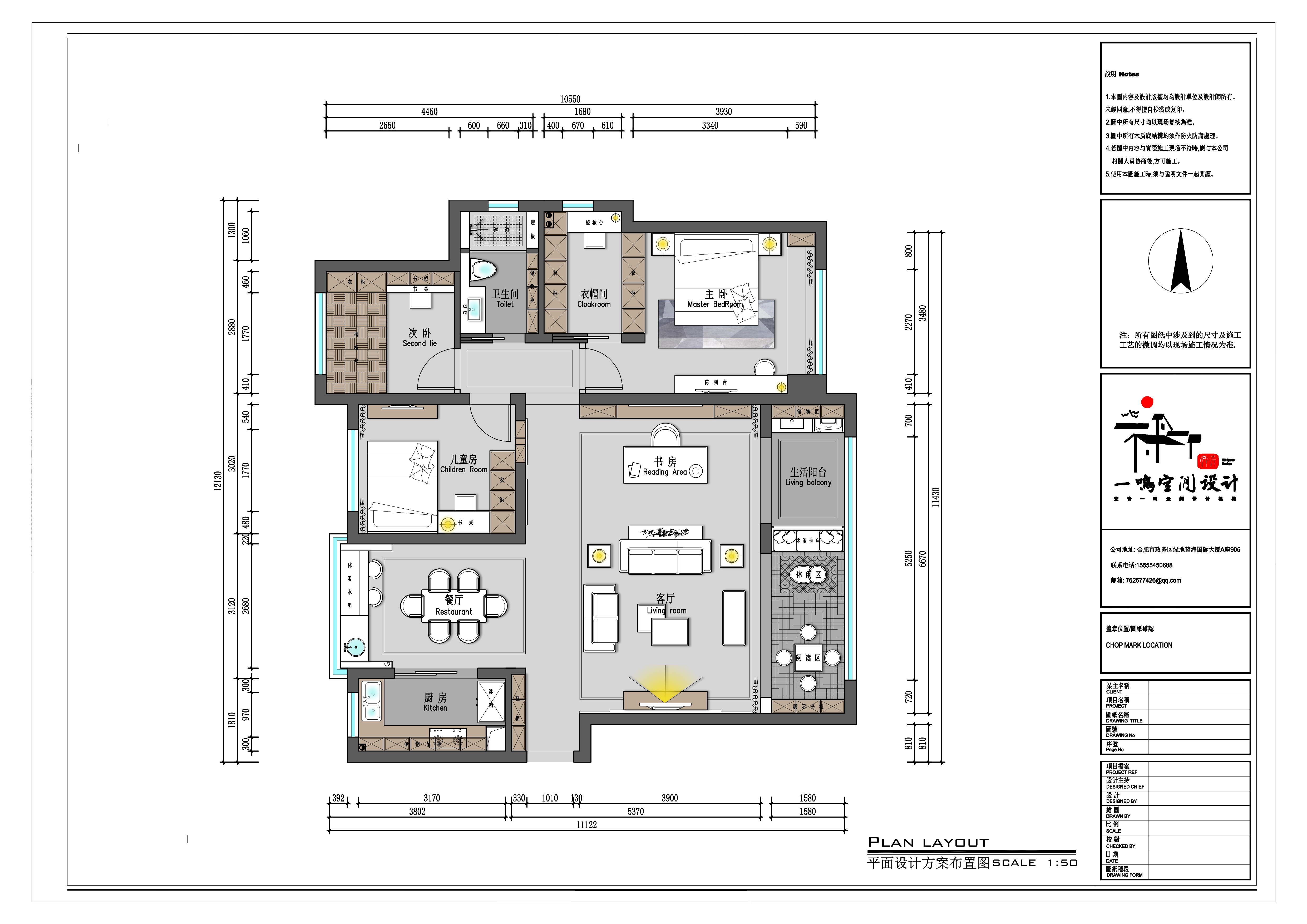
3、小区的户型,好的户型无论从采光、通风效果都是比较好的,这个户型需要改动的地方不是很多。这样也能节约一部分装修拆改费用。

4、看小区的地理位置以及周边的配套设施,生活便利也是至关重要的。比如说:学校、医疗、超市、写字楼、等等,建发·雍龙府位于合肥·包河区,目前整个包河区的发展趋势都是非常好的。未来的升值空间极大,现在基本上在30000元/m²左右。

总结:整个小区的大门、景观设计在合肥这边都是属于很不错的。这个小区档次按照10分计算,可以说是满分的状态。唯一不足的就是周边没有大型超市综合体,地铁正在修建中,可能对于有车一族来说,大部分交通都是开车,更方便。你们觉得呢?
评论列表 (0条)